42
$1,398,000 Sale
Listed 2 hours ago
1615 WICKERSON GATE
· 4+1
· 3.5
· 6
· 3500 - 5000
Key Facts
Key facts for 1615 WICKERSON GATE
Property Type
House, House
Parking
Garage: Yes, 6 parking
MLS #
X12462718
Size
3500 - 5000 sqft
Basement
Finished, N/A (Finished)
Listed on
-
Lot size
-
Tax
-
Days on Market
-
Year Built
-
Maintenance Fee
-
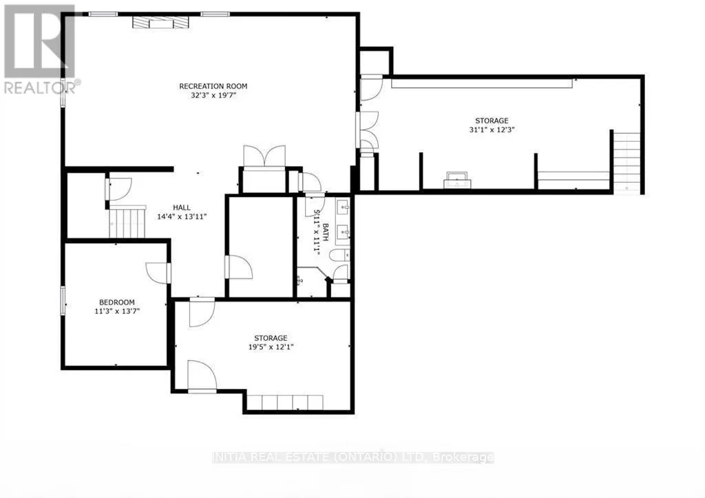
Description
All levels finished. Stunning executive in Wickerson Woods with southern exposure on a large lot in south London featuring superb curb appeal ,charming porch , gorgeous foyer, paver stone driveway, main floor exquisite office with built-in book shelving, oak hardwoods & ceramic throughout with in-fl...oor heating, high end finishes providing living space near 5641 sqft (above ground is 3841 sqft), 9' ceilings on main with crown moulding, formal dining room, transom windows for plenty of light, extra wide solid oak stairs ,200amp electrical, & sprinkler system. Master ensuite has dual sink, bathtub & glass walk-in shower , and heated floors. Open concept design offers 7.24M X 6.17M great room & gourmet kitchen with granite counter tops, tile backsplash, SS appliances, concealed large cabinet doors open to butler walk-in pantry. Double terrace doors leading to south-facing private backyard covered by concrete patio with wood burning barbecue & outdoor fireplace. Huge finished basement involves family room ,fireplace, one bedroom, a full bath ,loads of storage space ,home theatre equipped with projector ,surround sound system, and extra stairs to HEATED 3-car garage. $22000 upgrades in 2024 including new hardwood in 2 bdroms & new shingles. Close to all amenities & Boler Mountain Ski Club . (id:10452)
Similar Properties (No results)
Room Types
Bedroom 2
-
Dimensions 4.19 m x 3.66 m
165.07 sqft
Bedroom 3
-
Dimensions 4.11 m x 3.58 m
158.38 sqft
Bedroom 4
-
Dimensions 3.96 m x 3.81 m
162.4 sqft
Listing courtesy of: INITIA REAL ESTATE (ONTARIO) LTD
This REALTOR.ca listing content is owned and licensed by REALTOR® members of The Canadian Real Estate Association.